Haus 4
161,2 m² WF + 154,4 m² Garten
Erdgeschoss
61,5 m²
61,5 m²
Obergeschoss
55,0 m²
55,0 m²
Dachgeschoss
44,7 m²
44,7 m²
Keller
58,3 m²
58,3 m²
Garten
154,4 m²
154,4 m²
Terasse
5,3 m²
5,3 m²
2 Badezimmer
& 1 WC
& 1 WC
Fussbodenheizung
Fläche
161,2m²
Badezimmer/WC
3
Keller
58,3m²
Garten
154,4m²
Erdgeschoss – Haus 4
Flur I
8,5 m²
Küche
11,0 m²
WC
1,9 m²
Wohnraum I
14,5 m²
Wohnraum II
20,3 m²
Terrasse
10,6 m² (100%) * 0,5
= 5,3 m²
Erdgeschoss
61,5 m²
+ Garten
ca. 154,4 m²
+ 2 Stellplätze in der Tiefgarage
Obergeschoss – Haus 4
Flur II
5,5 m²
Zimmer 1
17,5 m²
Zimmer 2
21,6 m²
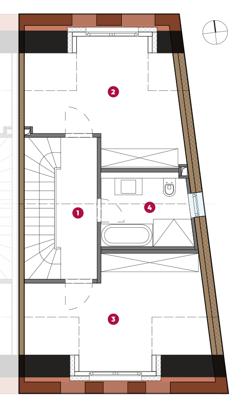
Bad I
6,7 m²
HWR
3,7 m²
Obergeschoss
55,0 m²
Dachgeschoss – Haus 4
Kellergeschoss – Haus 4
Flur
8,2 m²
KG Zimmer 1
17,7 m²
KG Zimmer 2
12,6 m²
KG Zimmer 3
19,8 m²
Kellergeschoss
58,3 m²
Flächen – Haus 4
Erdgeschoss
61,5 m²
Obergeschoss
56,0 m²
Dachgeschoss
44,7 m²
Summe
161,2 m²
+ Nutzfläche KG
58,3 m²
+ 2 Stellplätze in der Tiefgarage
Garten
ca. 154,4 m²
Trotz gewissenhaftester Prüfung und sorgfältigster Erarbeitung sind Irrtümer nicht ausgeschlossen.
Die Darstellungen am Modell, den Bildvorlagen, sowie eventuellen Musterwohnungen geben nur einen Eindruck vom derzeitig beabsichtigten Erscheinungsbild des Bauvorhabens.
Sie sind nicht Vertragsbestandteil. Die in den Grundrissen und vom Visualisierer eingezeichneten Einrichtungsgegenstände gehören nicht zum vertraglichen Lieferumfang. Sämtliche Flächenangaben sind Circa-Werte. Eine detaillierte Baubeschreibung entnehmen Sie bitte dem Kaufvertrag oder wenden sich an den Vertrieb.

