Haus 1
166,1 m² WF + 171,1 m² Garten
Erdgeschoss
63,5 m²
63,5 m²
Obergeschoss
56,6 m²
56,6 m²
Dachgeschoss
46,0 m²
46,0 m²
Keller
60,1 m²
60,1 m²
Garten
171,1 m²
171,1 m²
Terasse
5,3 m²
5,3 m²
2 Badezimmer
& 1 WC
& 1 WC
Fussbodenheizung
Fläche
166,1m²
Badezimmer/WC
3
Keller
60,1m²
Garten
171,1m²
Erdgeschoss – Haus 1
Flur I
6,7 m²
Küche
9,1 m²
WC
1,6 m²
Wohnraum I
18,7 m²
Wohnraum II
22,1 m²
Terrasse
10,6 m² (100%) * 0,5
= 5,3 m²
Erdgeschoss
63,5 m²
+ Garten
ca. 171,1 m²
+ 2 Stellplätze in der Tiefgarage
Obergeschoss – Haus 1
Flur II
5,5 m²
Zimmer 1
17,6 m²
Zimmer 2
23,2 m²
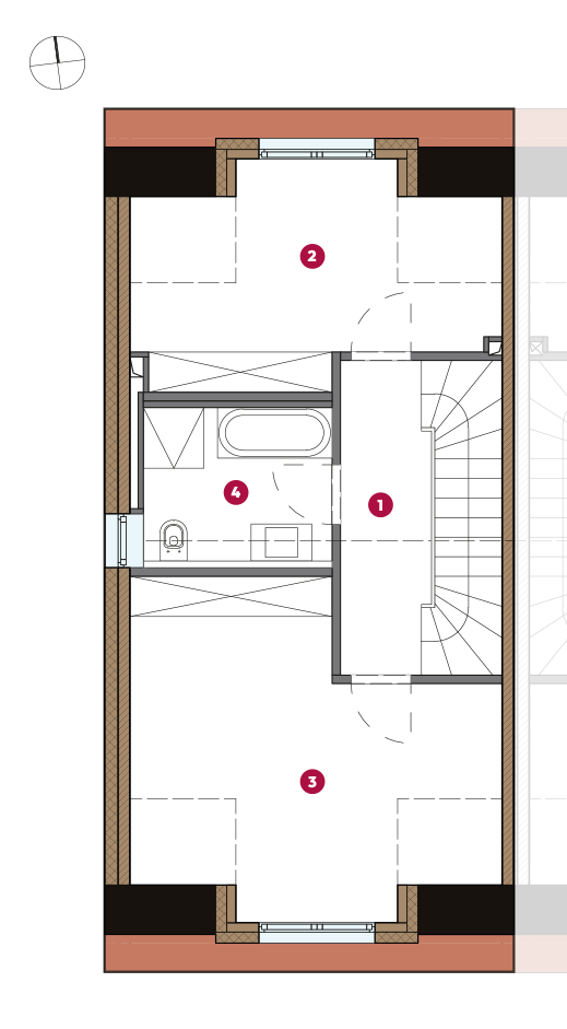
Bad I
6,5 m²
HWR
3,8 m²
Obergeschoss
56,6 m²
Dachgeschoss – Haus 1
Kellergeschoss – Haus 1
Flur
8,2 m²
KG Zimmer 1
17,8 m²
KG Zimmer 2
12,5 m²
KG Zimmer 3
21,6 m²
Kellergeschoss
60,1 m²
Flächen – Haus 1
Erdgeschoss
63,5 m²
Obergeschoss
56,6 m²
Dachgeschoss
46,0 m²
Summe
166,1 m²
+ Nutzfläche KG
60,1 m²
+ 2 Stellplätze in der Tiefgarage
Garten
ca. 171,1 m²
Trotz gewissenhaftester Prüfung und sorgfältigster Erarbeitung sind Irrtümer nicht ausgeschlossen.
Die Darstellungen am Modell, den Bildvorlagen, sowie eventuellen Musterwohnungen geben nur einen Eindruck vom derzeitig beabsichtigten Erscheinungsbild des Bauvorhabens.
Sie sind nicht Vertragsbestandteil. Die in den Grundrissen und vom Visualisierer eingezeichneten Einrichtungsgegenstände gehören nicht zum vertraglichen Lieferumfang. Sämtliche Flächenangaben sind Circa-Werte. Eine detaillierte Baubeschreibung entnehmen Sie bitte dem Kaufvertrag oder wenden sich an den Vertrieb.

