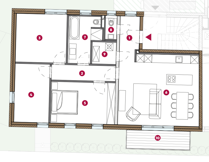
Wohnung 7

3-Zimmer 103,0 m²
Wohnfläche
103,0 m²
Balkon
7 m²
1 Badezimmer
& 1 WC
Fussbodenheizung
bis zu 2 Stellplätze in TG
Wohnfläche
103,0m²
Badezimmer/WC
2
Zimmer
3
Balkon
7m²

Wohnung 7


Flur I 5,1 m²
Flur II 5,9 m²
Zimmer 1 14,7 m²
Zimmer 2 12,1 m²
Zimmer 3 15,9 m²
Wohnraum mit Küche 33,4 m²
Bad 7,7 m²
WC 1,5 m²
Hauswirtschaftsraum 3,2 m²
Balkon
7 m² (100%) * 0,5
    = 3,5 m²
Erdgeschoss 103,0 m²
   
+ bis zu 2 Stellplätze in der Tiefgarage









Trotz gewissenhaftester Prüfung und sorgfältigster Erarbeitung sind Irrtümer nicht ausgeschlossen.
Die Darstellungen am Modell, den Bildvorlagen, sowie eventuellen Musterwohnungen geben nur einen Eindruck vom derzeitig beabsichtigten Erscheinungsbild des Bauvorhabens.
Sie sind nicht Vertragsbestandteil. Die in den Grundrissen und vom Visualisierer eingezeichneten Einrichtungsgegenstände gehören nicht zum vertraglichen Lieferumfang. Sämtliche Flächenangaben sind Circa-Werte. Eine detaillierte Baubeschreibung entnehmen Sie bitte dem Kaufvertrag oder wenden sich an den Vertrieb.


Tiefgarage






Ein Objekt der

MEGA Develop GmbH
info@megadevelop.de
Königsteiner Str. 64
D-65812 Bad Soden a. Taunus

Geschäftsführung:
Jerko Milicevic
Milan Mikulic
Amtsgericht Königstein im Taunus
HRB 11405